| PARÇA ADI | MALZEME | |
|---|---|---|
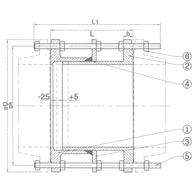
| 1 | KISA FLANŞ | EN GJS 400-15 |
| 2 | UZUN FLANŞ | EN GJS 400-15 |
| 3 | ARA FLANŞ | EN GJS 400-15 |
| 4 | SIZDIRMAZLIK RİNGİ | EPDM |
| 5 | SAPLAMA | STEEL(GVZ) |
| 6 | SOMUN | STEEL(GVZ) |
|
PN 10 |
PN 16 |
|||||||||
|---|---|---|---|---|---|---|---|---|---|---|
|
DN |
ØD |
Øk |
L |
L1 |
b |
ØD |
Øk |
L |
L1 |
b |
|
100 |
220 |
180 |
195 |
305 |
19 |
220 |
180 |
195 |
305 |
19 |
|
125 |
250 |
210 |
195 |
305 |
19 |
250 |
210 |
195 |
305 |
19 |
|
150 |
285 |
240 |
200 |
305 |
19 |
285 |
240 |
200 |
305 |
19 |
|
200 |
340 |
295 |
205 |
325 |
20 |
340 |
295 |
205 |
325 |
20 |
|
250 |
400 |
350 |
230 |
355 |
22 |
405 |
355 |
230 |
355 |
22 |
|
300 |
445 |
400 |
250 |
410 |
24.5 |
460 |
410 |
250 |
410 |
24.5 |
|
350 |
505 |
460 |
260 |
410 |
24.5 |
520 |
470 |
260 |
410 |
26.5 |
|
400 |
565 |
515 |
260 |
430 |
24.5 |
580 |
525 |
260 |
430 |
28 |
|
500 |
670 |
620 |
270 |
460 |
26.5 |
715 |
650 |
270 |
460 |
31.5 |
|
600 |
780 |
725 |
290 |
490 |
30 |
840 |
770 |
290 |
490 |
36 |
|
700 |
895 |
840 |
300 |
450 |
32.5 |
910 |
840 |
300 |
480 |
39.5 |
|
800 |
1015 |
950 |
290 |
470 |
35 |
1025 |
950 |
290 |
470 |
43 |
|
1000 |
1230 |
1160 |
340 |
530 |
40 |
1255 |
1170 |
340 |
530 |
50 |
| BOYUTLAR : | 3202 F4 |
|---|---|
| BAĞLANTILAR : | DİN 2533 - ISO 7005/ 2 |
| ÇALIŞMA SICAKLIĞI : | -10 oC +70 oC |
| ANMA BASINCI : | PN 10 / 16/ 25 |
| MALZEME : |
EN GJS 400-15 |