| PARÇA ADI | MALZEME | |
|---|---|---|
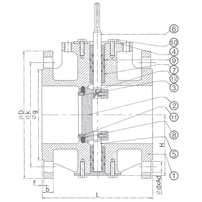
| 1 | GÖVDE | EN GJS 400-15 |
| 2 | KLAPE | EN GJS 400-15 |
| 3 | BASKI ÇEMBERİ | St 37 |
| 4 | KAPAK | EN GJS 400-15 |
| 5 | MİL | X20 Cr 13 |
| 6 | TAHRİK MİLİ | X20 Cr 13 |
| 7 | YATAK BURCU | DELRIN |
| 8 | SIZDIRMAZLIK RİNGİ | EPDM |
| 9 | ORING | NBR |
| 10 | CIVATA | 8.8 |
| 11 | CIVATA | 8.8 |
| 12 | KAMA | Ç1040 |
|
|
L |
PN 10 |
PN 16 |
|||||||||||
|---|---|---|---|---|---|---|---|---|---|---|---|---|---|---|
|
DN |
H |
DIN 3222 F4 |
ØD |
Øk |
Øg |
f |
b |
ØdxAd. |
ØD |
Øk |
Øg |
f |
b |
ØdxAd. |
|
100 |
105 |
190 |
220 |
180 |
156 |
3 |
19 |
19x8 |
220 |
180 |
156 |
3 |
19 |
19x8 |
|
125 |
117 |
200 |
250 |
210 |
184 |
3 |
19 |
19x8 |
250 |
210 |
184 |
3 |
19 |
19x8 |
|
150 |
128 |
210 |
285 |
240 |
211 |
3 |
19 |
23x8 |
285 |
240 |
211 |
3 |
19 |
23x8 |
|
200 |
157 |
230 |
340 |
295 |
266 |
3 |
20 |
23x8 |
340 |
295 |
266 |
3 |
20 |
23x12 |
|
250 |
213 |
250 |
400 |
350 |
319 |
3 |
22 |
23x12 |
400 |
355 |
319 |
3 |
22 |
28x12 |
|
300 |
242 |
270 |
455 |
400 |
370 |
4 |
24.5 |
23x12 |
455 |
410 |
370 |
4 |
24.5 |
28x12 |
|
350 |
273 |
290 |
505 |
460 |
429 |
4 |
24.5 |
23x16 |
520 |
470 |
429 |
4 |
26.5 |
28x16 |
|
400 |
299 |
310 |
565 |
515 |
480 |
4 |
24.5 |
28x16 |
580 |
525 |
480 |
4 |
28 |
31x16 |
|
450 |
335 |
330 |
615 |
565 |
530 |
4 |
25.5 |
28x20 |
640 |
585 |
548 |
4 |
30 |
31x20 |
|
500 |
355 |
350 |
670 |
620 |
582 |
4 |
26.5 |
28x20 |
715 |
650 |
609 |
4 |
31.5 |
34x20 |
|
600 |
430 |
390 |
780 |
725 |
682 |
5 |
30 |
31x20 |
840 |
770 |
720 |
5 |
36 |
37x20 |
|
700 |
465 |
430 |
895 |
840 |
794 |
5 |
32.5 |
31x24 |
910 |
840 |
794 |
5 |
39.5 |
37x24 |
|
800 |
521 |
470 |
1015 |
950 |
901 |
5 |
35 |
34x24 |
1025 |
950 |
901 |
5 |
43 |
40x24 |
|
900 |
576 |
510 |
1115 |
1050 |
1001 |
5 |
37.5 |
34x28 |
1125 |
1050 |
1001 |
5 |
46.5 |
40x28 |
|
1000 |
650 |
550 |
1230 |
1160 |
1112 |
5 |
40 |
37x28 |
1255 |
1170 |
1112 |
5 |
50 |
43x28 |
| BOYUTLAR : | 3202 F4 |
|---|---|
| BAĞLANTILAR : | DIN 2533 - ISO 7005/ 2 |
| ÇALIŞMA SICAKLIĞI : | -10 °C +70 °C |
| ANMA BASINCI : | PN 10 / 16/ 25 |
| MALZEME : | EN GJS 400-15 |