|
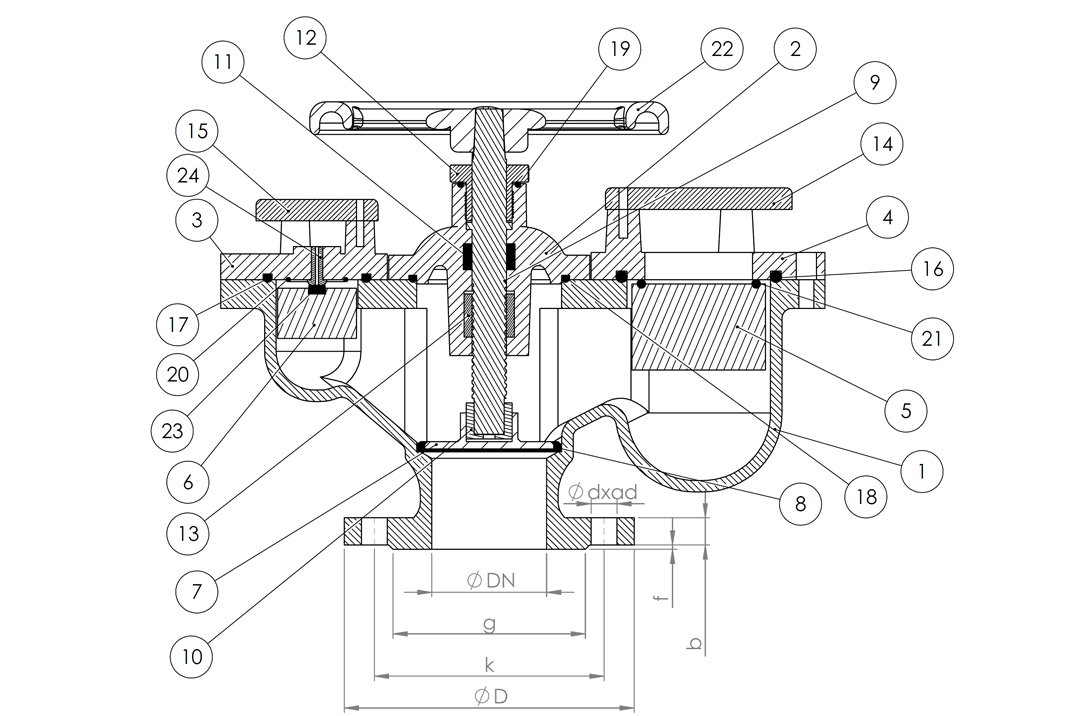
NO: |
PARÇA NUMARASI |
TANIM |
|---|---|---|
|
1 |
GÖVDE |
EN GJS 400-15 |
|
2 |
ORTA KAPAK |
EN GJS 400-15 |
|
3 |
KÜÇÜK FLANŞ |
EN GJS 400-15 |
|
4 |
BÜYÜK FLANŞ |
EN GJS 400-15 |
|
5 |
BÜYÜK PLASTİK PİSTON |
PE |
|
6 |
KÜÇÜK PLASTİK PİSTON |
PE |
|
7 |
KLEPE |
EN GJS 400-15 |
|
8 |
KLEPE CONTASI |
EPDM |
|
9 |
MİL |
X20Cr13 |
|
10 |
BURÇ |
MS 58 |
|
11 |
TOZ KEÇESİ |
EPDM |
|
12 |
SARI RAKOR |
MS 58 |
|
13 |
SARI YATAK |
MS 58 |
|
14 |
BÜYÜK KAPAK |
EN GJS 400-15 |
|
15 |
KÜÇÜK KAPAK |
EN GJS 400-15 |
|
16 |
BÜYÜK KAPAK ORİNG |
EPDM |
|
17 |
KÜÇÜK KAPAK ORİNG |
EPDM |
|
18 |
KAPAK ORİNG ORTA |
EPDM |
|
19 |
KÜÇÜK ÜST ORİNG |
EPDM |
|
20 |
KÜÇÜK ORİNG |
EPDM |
|
21 |
BÜYÜK ORİNG |
EPDM |
|
22 |
VOLAN |
EN GJS 400-15 |
|
23 |
KAUCUK TAKOZ |
EPDM |
|
24 |
SİBOP |
MS 58 |
|
PN 16 |
||||||||||
|---|---|---|---|---|---|---|---|---|---|---|
|
DN |
d1 |
H |
L |
B |
ØD |
Øk |
Øg |
f |
b |
ØdxAd. |
|
50 |
200 |
315 |
484 |
160 |
165 |
125 |
102 |
3 |
20 |
18x4 |
|
65 |
200 |
315 |
484 |
160 |
185 |
145 |
122 |
3 |
20 |
18x4 |
|
80 |
200 |
315 |
484 |
160 |
200 |
160 |
138 |
3 |
22 |
18x8 |
|
100 |
250 |
400 |
563 |
250 |
220 |
180 |
158 |
3 |
24 |
18x8 |
|
125 |
250 |
400 |
563 |
250 |
250 |
210 |
188 |
3 |
26 |
18x8 |
|
150 |
315 |
410 |
670 |
312 |
285 |
240 |
212 |
3 |
26 |
22x8 |
|
200 |
315 |
410 |
670 |
312 |
340 |
295 |
268 |
3 |
30 |
22x12 |
|
250 |
400 |
615 |
915 |
312 |
405 |
355 |
320 |
3 |
32 |
26x12 |
| BOYUTLAR : | 3202 F4 |
|---|---|
| BAĞLANTILAR : | DIN 2533 - ISO 7005/ 2 |
| ÇALIŞMA SICAKLIĞI : | -10 °C +120 °C |
| ANMA BASINCI : | PN 10 / 16/ 25 |
| MALZEME : |
PN 10 / 16 - EN GJS 400-15 |